Používame cookies

Súbory cookie a ďalšie technológie sledovania používame na zlepšenie vášho zážitku z prehliadania našich webových stránok, na to, aby sme vám zobrazovali prispôsobený obsah a cielené reklamy, na analýzu návštevnosti našich webových stránok a na pochopenie toho, odkiaľ naši návštevníci prichádzajú. Viac info

Obchodný priestor na predaj v centre Banskej Bystrice s parkovaním

Ulica: Rudlovská cesta
Mestská časť: Rudlová
Obec: Banská Bystrica
Okres: Banská Bystrica
Kraj: Banskobystrický kraj
Druh: Priestory
Typ: Predaj
Typ objektu: Obchodné priestory
3 000 €/m2

Popis nehnuteľnosti

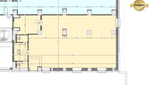
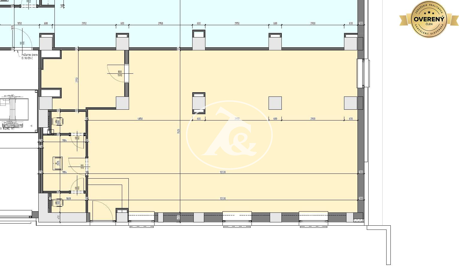
Ponúkame na predaj moderný obchodný priestor nachádzajúci sa na prízemí novostavby Rudlovská Rezidence na ulici Rudlovská cesta v Banskej Bystrici. Priestor je prístupný priamo z ulice, čo zabezpečuje výbornú viditeľnosť a dostupnosť pre klientov.
Celková výmera priestoru je 104,45 m². Dispozične pozostáva z jednej veľkej miestnosti a sociálneho zázemia (kúpeľňa a samostatné WC, ktoré je možné využiť aj pre personál).
Priestor je dokončený v štandarde a je pripravený na okamžité využitie.
Objekt je tehlový, zateplený, s hliníkovými oknami a energetickým certifikátom triedy A.

Svojou dispozíciou je vhodný ako obchodný priestor, showroom, kancelária, ambulancie alebo prevádzka služieb.
V prípade záujmu je možné dokúpiť aj susedný priestor a prepojením vytvoriť väčší obchodný celok s výmerou až 189 m².
K priestoru je možné dokúpiť dve parkovacie miesta priamo pred objektom.

Technické informácie:

  • Úžitková plocha: 104,45 m²
  • Internet: optika
  • Vykurovanie: spoločné – vlastná kotolňa
  • Konštrukcia: tehlová stavba
  • Zateplený objekt
  • Okná: hliníkové
  • Energetický certifikát: A

Cena: 3 000€/m2  (vrátane DPH, možnosť uplatnenia odpočtu DPH)

V prípade záujmu o viac informácií alebo dohodnutie obhliadky nás neváhajte kontaktovať:
Tel.číslo: +421 903 703 850
Email: litomericka@realitna.sk

Vlastnosti

Status:
aktívne
Vlastníctvo:
osobné
Úžitková plocha:
104.45 m2
Zastavaná plocha:
104.45 m2
Stav:
novostavba
Celková plocha:
104.45 m2

Informatívna úverová kalkulačka

Pozrieť na mape

Maklér

Ing. Adriena Litomerická

Ing. Adriena Litomerická

Spolumajiteľka

  • Slovensky
  • Česky
  • English
  • narks
  • lrm

Je zakladateľkou a riaditeľkou spoločnosti a okrem maklérskej a riadiacej práce vo firme, sa aktívne zapája do práce profesijných združení a to na národnej, ako aj medzinárodnej báze. V rokoch 2009 – 2013 pôsobila ako viceprezidentka Európskej Realitnej Asociácie – CEI, dnes CEPI.

Radi Vám poradíme

Podobné nehnuteľnosti